Понедельник, 12.01.2026, 18:57
Приветствую Вас, Гость
[ Новые сообщения · Участники · Правила форума · Поиск · RSS ]
  • Страница 1 из 1
  • 1
Приспособление для определения правильности круглой формы ши
engineerklubДата: Воскресенье, 14.09.2025, 14:57 | Сообщение # 1
Генералиссимус
Группа: Администраторы
Сообщений: 36480
Репутация: 0
Статус: Offline
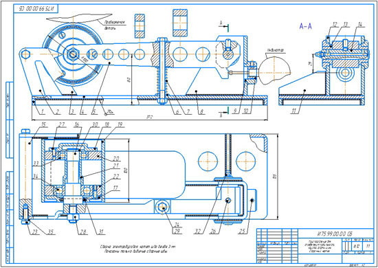
Приспособление для определения правильности круглой формы шины И75.99.00.00 ЧЕРТЕЖ

Приспособленке предназначено для определения правильности круглой формы шин. Колебания наружного диаметра шины не должны превышать определенной величины. Для проверки шину монтируют на оправке и устанавливают на ось, на которой шина может легко вращаться. Под шину подводят ролик 19 и начинают ее вращать. Колебания размера радиуса шины наблюдают по индикатору, закрепленному в зажимной втулке 10. При выполнении рабочих чертежей приспособления следует иметь в виду, что на все сварные детали нужно выполнить чертежи заготовок с разделкой кромок под сварку (если это нужно), а затем чертеж сборочной единицы — сварные детали в сборе, на котором нанести все размеры, необходимые для обработки детали после сварки.

Приспособление для определения правильности круглой формы шины И75.99.00.00 СБ
Приспособление для определения правильности круглой формы шины И75.99.00.00 спецификация
Приспособление для определения правильности круглой формы шины И75.99.00.00 3d сборка
Приспособление для определения правильности круглой формы шины И75.99.00.00 чертежи
Основание И00.99.01.00 СБ
Ролик И00.99.02.00 СБ
Обечайка И00.99.01.01
Щека со стрелой И00.99.01.02
Щека И00.99.01.03
Плита И00.99.01.04
Рычаг И00.99.00.05
Шайба И00.99.00.06
Пружина И00.99.00.07
Стойка И00.99.01.08
Втулка стопорная И00.99.01.09
Втулка зажимная И00.99.00.10
Ребро И00.99.01.11
Кольцо И00.99.01.12
Втулка И00.99.00.13
Ось И00.99.00.14
Ручка И00.99.00.15
Ось И00.99.00.16
Крышка И00.99.00.17
Крышка глухая И00.99.00.18
Ролик И00.99.02.19
Кольцо малое И00.99.02.20
Втулка И00.99.00.21
Кольцо большое И00.99.02.22

Приспособление для определения правильности круглой формы шины СКАЧАТЬ
 
  • Страница 1 из 1
  • 1
Поиск:

Рейтинг@Mail.ru