|
Сборочный чертеж НГТУ
|
|
| engineerklub | Дата: Вторник, 23.12.2025, 05:29 | Сообщение # 16 |
 Генералиссимус
Группа: Администраторы
Сообщений: 39098
Статус: Offline
| Пневмоцилиндр НГТУ.002.016.100 ЧЕРТЕЖ
 Пневмоцилиндры по принципу действия можно разделит на односторонние и двухсторонние. В односторонних цилиндрах сжатый воздух подается только в одну сторону от поршня. В цилиндрах двухстороннего действия воздух подается поочередно в обе полости, и поршень перемещается в обоих направлениях под нагрузкой. Эти пневмоцилиндры наиболее распространены в приводах литейных машин (особенно автоматических линий). Они приводят в движение рабочие органы, которые перемещаются в любых направлениях, когда требуется преодолеть сопротивление при прямом и обратном ходах. Движение поршня 3 происходит под действием сжатого воздуха. Подавая воздух через правое отверстие корпуса 1 или нижнее отверстие крышки 5, для чего в эти резьбовые отверстия ввинчиваются наконечники шлангов компрессора, можно двигать поршень вниз или вверх, и тем самым придавать нужное движение механизму, присоединенному к штоку поршня. Кольца имеют прорезь под углом 45о. Поршень 3 закреплен на шток 2 гайкой 11, шайбой 16 и шплинтом 18. В корпусе 1 в месте выхода штока 2 расположено уплотняющее устройство (сальник) 19, предупреждающее просачивание воздуха через зазор между штоком 2 и отверстием в крышке сальника 4. крепление крышки сальника 4 к корпусу 1 осуществляется шпильками 17. крышка 5 крепиться к корпусу 1 болтами 8.
МЕТОДИЧЕСКИЕ УКАЗАНИЯ. Чертеж выполнить на формате А2 в дух изображениях в масштабе 1:1. Выполнить сечение А-А на свободном поле чертежа.
На чертеже выполнить следующие соединения;
I – соединить крышку 5 с корпусом 1 болтами 8 (резьба М12), установить шайбы 15 и гайки 10; II – выполнить соединение крышки сальника 4 с корпусом 1 шпильками 17 (резьба М10), установить шайбы 14 и гайки 9; III – закрепить поршень 2 посредством шайбы 16, гайки 11 (резьба М16) и шплинта 18; IV – ввернуть в крышку 5 пробку 12 (резьба М12х1, 25) по МН 366-60 (см. прил. II); V – соединить штуцер корпуса с угольником 13 (резьба G1/2). Заполнить в спецификацию графу Стандартные изделия.
Пневмоцилиндр НГТУ.002.016.100 сб Пневмоцилиндр НГТУ.002.016.100 спецификация Пневмоцилиндр НГТУ.002.016.100 3d сборка Пневмоцилиндр НГТУ.002.016.100 чертежи Корпус НГТУ.002.016.101 Шток НГТУ.002.016.102 Поршень НГТУ.002.016.103 Крышка сальника НГТУ.002.016.104 Крышка НГТУ.002.016.105 Кольцо поршневое НГТУ.002.016.106 Прокладка НГТУ.002.016.107
Пневмоцилиндр НГТУ.002.016.100 СКАЧАТЬ
|
| |
|
|
| engineerklub | Дата: Вторник, 23.12.2025, 09:53 | Сообщение # 17 |
 Генералиссимус
Группа: Администраторы
Сообщений: 39098
Статус: Offline
| Пневмоцилиндр НГТУ.002.017.100 ЧЕРТЕЖ
 Основные достоинства пневмопривода – простота конструкции, удобство эксплуатации, быстрое действие и устройством основных компонентов. Общая схема пневмопривода следующая. Компрессор, приводимый в действие электродвигателем, засасывает из атмосферы воздух через фильтр и нагнетает его в пневмосистему при определенном давлении. Сжатый воздух накапливается в сборнике, который сглаживает пульсацию давления от компрессора и уменьшает влияние потребителей сжатого воздуха. По трубе воздух подается через распределитель к исполнительному устройству – пневмоцилиндру. Пневмоцилиндры нашли наибольшее распространение в приводах литейных машин, совершающих возвратно-поступательное движение. Пневмопривод имеет несколько преобразователей энергии. Электродвигатель преобразует электрическую энергию в механическую, которая в компрессоре переходит в энергию сжатого воздуха. В пневмоцилиндре энергия сжатого воздуха преобразуется в механическую. Пневоцилиндры по принципу действия подразделяются на односторонние и двухсторонние. В одностороннем цилиндре сжатый воздух подается только в одну сторону от поршня 3. Обратный ход поршня осуществляется под действием пружины 6. Уплотнения служат для предотвращения утечки воздуха из полости с высоким давлением в полость с низким давление. Наиболее широко используют для уплотнения соединений кольца 11 из маслостойкой резины. Прокладки 5 обеспечивают плотное прилегание крышки 2, основания 4 к корпусу 1 посредством болтов 7, гаек 9 , шайб 14 и шпилек 16, гаек 10, шайб 15
МЕТОДИЧЕСКИЕ УКАЗАНИЯ. Чертеж выполнить на формате А2 в двух изображениях в масштабе 1:1. Выполнить сечение А-А на свободном поле чертежа.
На чертеже выполнить следующие соединения:
I – соединить крышку 2 с корпусом 1 болтами 7 (резьба М10), установить шайбы 14 и гайки 9; II – выполнить соединение основания 4 с корпусом 1 шпильками 16 (резьба М12), установить шайбы 15 и гайки 10; III – закрепить поршень 3 посредством шайбы 13, гайки 8 (резьба М8) и шплинта 17; IV – соединить штуцер крышки 2 с тройником 12 (резьба G1). Заполнить в спецификацию графу Стандартные изделия.
Пневмоцилиндр НГТУ.002.017.100 сб Пневмоцилиндр НГТУ.002.017.100 спецификация Пневмоцилиндр НГТУ.002.017.100 3d сборка Пневмоцилиндр НГТУ.002.017.100 чертежи Корпус НГТУ.002.017.101 Крышка НГТУ.002.017.102 Поршень НГТУ.002.017.103 Основание НГТУ.002.017.104 Прокладка НГТУ.002.017.105 Пружина НГТУ.002.017.106
Пневмоцилиндр НГТУ.002.017.100 СКАЧАТЬ
|
| |
|
|
| engineerklub | Дата: Среда, 24.12.2025, 11:03 | Сообщение # 18 |
 Генералиссимус
Группа: Администраторы
Сообщений: 39098
Статус: Offline
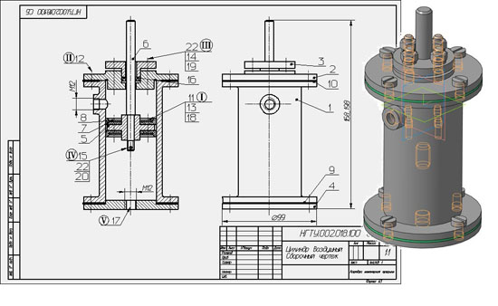
| Цилиндр воздушный НГТУ.002.018.100 ЧЕРТЕЖ
 Под действием сжатого воздуха происходит движение поршня 5 внутри корпуса 1. Поршень тянет за собой шток 6. Подавая воздух поочередно в оба отверстия корпуса 1, для чего в эти резьбовые отверстия ввинчивается наконечник шлангов компрессора, можно двигать поршень 5 вверх или вниз и тем самым придавать нужное движение присоединенному к штоку 6 механизму. Уплотнение поршня внутри корпуса достигается двумя манжетами 7 из специальной маслоустойчивой резины. Прижатие манжет к корпусу и поршню производится дисками 8 с помощью болтов 11, гаек 13 и шайб 18. Поршень закрепляется на штоке 6 гайкой 15, которая стопорится на штоке шайбой 20 и шплинтом 22. Нажимное кольцо 16, закрываемое крышкой 3, обеспечивает дополнительное уплотнение штоку 6. Крышки 2 и 3 крепятся шпильками 21, гайками 14, шайбами19. К корпусу 1 прикрепляется винтами 12 крышка 2. Уплотнения 9 и 10 обеспечивают герметичность соединений.
МЕТОДИЧЕСКИЕ УКАЗАНИЯ Чертеж выполнить на формате А2 в двух изображениях в масштабе 1:1. На чертеже выполнить следующие соединения:
I – соединить диски 8 с поршнем 5 болтами 11 (резьба М6), установить шайбы 18 и гайки 13; II – выполнить соединение корпуса 1 с крышками 2 и 4 винтами 12 (резьба М8); III – выполнить соединение крышки 3 и крышки 2 шпильками 21 (резьба М8), установить шайбы 19 и гайки 14. IV – закрепить поршень 5 на штоке 6 посредством гайки 15 (резьба М12), шайбы 10 и шплинта 22; V – ввернуть в крышку 4 пробку 17 (резьба М12х1,5). Заполнить в спецификации графу Стандартные изделия
Цилиндр воздушный НГТУ.002.018.100 сб Цилиндр воздушный НГТУ.002.018.100 спецификация Цилиндр воздушный НГТУ.002.018.100 3d сборка Цилиндр воздушный НГТУ.002.018.100 чертежи Корпус НГТУ.002.018.101 Крышка НГТУ.002.018.102 Крышка НГТУ.002.018.103 Крышка НГТУ.002.018.104 Поршень НГТУ.002.018.105 Шток НГТУ.002.018.106 Манжета НГТУ.002.018.107 Диск НГТУ.002.018.108 Уплотнение НГТУ.002.018.109 Уплотнение НГТУ.002.018.110
Цилиндр воздушный НГТУ.002.018.100 СКАЧАТЬ
|
| |
|
|
| engineerklub | Дата: Четверг, 25.12.2025, 07:22 | Сообщение # 19 |
 Генералиссимус
Группа: Администраторы
Сообщений: 39098
Статус: Offline
| Насос смазочный НГТУ.002.019.100 ЧЕРТЕЖ
 Смазочный насос одноплунжерный предназначен для смазки трущихся деталей. При движении рычага (на чертеже не показан) плунжер 2 поднимается вверх, освобожденное пространство в полости корпуса заполняется жидкой смазкой. При движении плунжера вниз под действием пружины 9, работающей на растяжение, вытесняемое масло давит на шарик 20. Передвигаясь вниз, он открывает отверстие в штуцере 5, и масло подается к трущимся частям деталей. При обратном движении плунжера 2, пружина 10 возвращает шарик 20 в первоначальное положение – клапан закрыт. Периодическая заливка масла осуществляется через отверстие крышки 3, которое закрывается пробкой 17. Для наблюдения за уровнем масла в насосе имеется маслоуказатель – крышка 4, изготовленная из прозрачной пластмассы. Крышка 4 по средствам прокладки 12 и потайных винтов 15 плотно крепится к корпусу 1, а крышка 3 – шпильками 21, гайками 16 и шайбами 19. Корпус 1 с опорой 6 соединяют болтами 14, гайками 16 и шайбами 18. Шайба 7, служащая опорой для пружины 9, соединяется с плунжером 2 штифтом 22. Второй опорой пружины 9 является плоскость на крышке 3.
МЕТОДИЧЕСКИЕ УКАЗАНИЯ
Чертеж выполнить на формате А2 в двух изображениях в масштабе 1:1. На чертеже выполнить следующие соединения:
I – соединить опору 6 с корпусом 1 болтами 14 (резьба М10), установить шайбы 18 и гайки 16; II – выполнить соединение крышки 4 с корпусом 1 винтами 15 (резьба М8); III – выполнить соединение крышки 3 с корпусом 1 шпильками 21 (резьба М10, материал корпуса – чугун), установить шайбы 19 и гайки 16; IV - ввернуть в крышку 3 пробку 17 (резьба М10х1 по МН 366-60). Заполнить в спецификации графу Стандартные изделия.
Насос смазочный НГТУ.002.019.100 сб Насос смазочный НГТУ.002.019.100 спецификация Насос смазочный НГТУ.002.019.100 3d сборка Насос смазочный НГТУ.002.019.100 чертежи Корпус НГТУ.002.019.101 Плунжер НГТУ.002.019.102 Крышка НГТУ.002.019.103 Крышка НГТУ.002.019.104 Штуцер НГТУ.002.019.105 Опора НГТУ.002.019.106 Шайба НГТУ.002.019.107 Шайба НГТУ.002.019.108 Пружина НГТУ.002.019.109 Пружина НГТУ.002.019.110 Прокладка НГТУ.002.019.111 Прокладка НГТУ.002.019.112 Гайка НГТУ.002.019.113
Насос смазочный НГТУ.002.019.100 СКАЧАТЬ
|
| |
|
|
| engineerklub | Дата: Четверг, 25.12.2025, 14:52 | Сообщение # 20 |
 Генералиссимус
Группа: Администраторы
Сообщений: 39098
Статус: Offline
| Насос шестеренчатый НГТУ.002.020.100 ЧЕРТЕЖ
 В гидравлических системах применяют шестеренчатые, лопастные и плунжерные насосы. Шестеренчатые насосы создают давление масла (жидкости) до 12 атм. Конструкция этого насоса наиболее проста. Он состоит из пары цилиндрических зубчатых колес 2, установленных в чугунный корпус 1. При вращении колес масло из всасывающей полости А попадает между стенками корпуса и переносится в нагнетательную полость Б. Сцепляющиеся зубья колесо препятствуют возвращению масла во всасывающую полость. Чтобы избежать утечки масла, зазоры должны быть минимальными, особенно между зубьями и корпусом, а также по торцам зубчатых колес. Шестеренчатый насос начинают собирать с запрессовки в крышки 5 и втулок 8. Затем на втулки 8 наносят слой солидола, который обеспечивает смазку для вала 3 и оси 4. С наружных сторон корпуса 1 помещают пропитанные нитролаком бумажные прокладки (на чертеже они не показаны), устанавливают крышку 5 и завинчивают винты 11. На ось 4 монтируют на призматической шпонке 18 зубчатое колесо 2. Крышку 6 устанавливают к корпусу 1 и крепят шпильками 17 с гайками 12 и шайбами 15. Для уплотнения вала в крышке 6 поставлены сальниковые войлочные кольца 14, которые прижимаются к нему и крышке посредством гайки 7. Корпус 1 к опоре 9 крепится болтами 10, гайками 13 и шайбами 15.
МЕТОДИЧЕСКИЕ УКАЗАНИЯ Чертеж выполнить на формате А2 в двух изображениях в масштабе 1:1.
На чертеже выполнить следующие соединения:
I – соединить зубчатое колесо 2 с осью 4 при помощи призматической шпонки 18(размеры шпонки 8х7х25); II – соединить корпус I с опорой 9 болтами 10(резьба М12), установить шайбы 16 и гайки 13; III – выполнить соединение крышки 5 с корпусом I винтами 11(резьба М10); IV – выполнить соединение крышки 6 с корпусом I шпильками 17(резьба М8, материал корпуса – чугун) установить шайбы 15 и гайки 12; Заполнить в спецификацию графу Стандартные изделия.
Насос шестеренчатый НГТУ.002.020.100 сб Насос шестеренчатый НГТУ.002.020.100 спецификацция Насос шестеренчатый НГТУ.002.020.100 3d сборка Насос шестеренчатый НГТУ.002.020.100 чертежи Корпус НГТУ.002.020.101 Колесо зубчатое НГТУ.002.020.102 Вал НГТУ.002.020.103 Ось НГТУ.002.020.104 Крышка НГТУ.002.020.105 Крышка НГТУ.002.020.106 Гайка НГТУ.002.020.107 Втулка НГТУ.002.020.108 Опора НГТУ.002.020.109
Насос шестеренчатый НГТУ.002.020.100 СКАЧАТЬ
|
| |
|
|
| engineerklub | Дата: Пятница, 26.12.2025, 05:26 | Сообщение # 21 |
 Генералиссимус
Группа: Администраторы
Сообщений: 39098
Статус: Offline
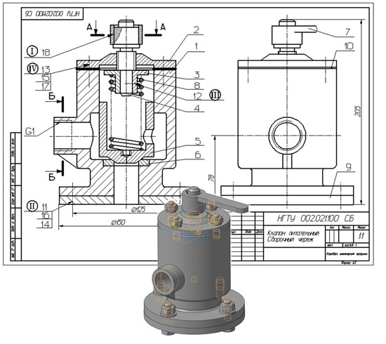
| Клапан питательный НГТУ.002.021.100 ЧЕРТЕЖ
 Клапан устанавливается на трубопроводах, соединяющих резервуары с приборами, нагнетающими газы или жидкости. В корпусе I на кольцо 6 поставлен клапан 5. Пружина 8 опирается на клапан 5 и седло 3. Рабочее состояние пружины достигается посредством винта 4. Вращение винта осуществляется ручкой 7, которая соединяется с винтом посредством призматической шпонки 18. В камере клапана просверлено отверстие для обеспечения атмосферного давления. Поставить или вынуть клапан из корпуса можно посредством стержня, ввернутого в отверстие клапана. Прокладка 10 обеспечивает плотное прилегание крышки 2 к корпусу I посредством шпилек 17, гаек 13 и шайб 15. Седло 3 крепится винтом 12 к ходовому винту 4. Корпус I соединяется с опорой 9 болтами 11, гайками 14 и шайбами 16. Жидкость или газ, идущие от нагнетательного прибора, поднимают клапан 5 и проходит по левому отверстию корпуса I в резервуар. Обратно газ или жидкость идти не могут, так как клапан 5 под действием пружины 8 садится на кольцо 6 и закрывает входное отверстие корпуса.
МЕТОДИЧЕСКИЕ УКАЗАНИЯ Чертеж выполнить на формате А2 в двух изображениях в масштабе 1:1. Выполнить сечение А-А и Б-Б на свободном поле чертежа.
На чертеже выполнить следующие соединения:
I – соединить рукоятку 7 с винтом 4 при помощи призматической шпонки 18(размеры шпонки 6х6х20); II – соединить опору 9 с корпусом I болтами 11(резьба М12), установить шайбы 16 и гайки 14; III – закрепить седло 3 на винте 4 посредством винта 12(резьба М6); IV – выполнить соединение крышки 2 с корпусом I шпильками 17(резьба М10, материал корпуса – чугун) установить шайбы 15 и гайки 13; Заполнить в спецификацию графу Стандартные изделия.
Клапан питательный НГТУ.002.021.100 сб Клапан питательный НГТУ.002.021.100 спецификация Клапан питательный НГТУ.002.021.100 3d сборка Клапан питательный НГТУ.002.021.100 чертежи Корпус НГТУ.002.021.101 Крышка НГТУ.002.021.102 Седло НГТУ.002.021.103 Винт НГТУ.002.021.104 Клапан НГТУ.002.021.105 Кольцо НГТУ.002.021.106 Ручка НГТУ.002.021.107 Пружина НГТУ.002.021.108 Опора НГТУ.002.021.109 Прокладка НГТУ.002.021.110
Клапан питательный НГТУ.002.021.100 СКАЧАТЬ
|
| |
|
|
| engineerklub | Дата: Пятница, 26.12.2025, 15:50 | Сообщение # 22 |
 Генералиссимус
Группа: Администраторы
Сообщений: 39098
Статус: Offline
| Клапан предохранительный НГТУ.002.022.100 ЧЕРТЕЖ
 Предохранительные клапаны предназначаются для исключения возможности повышения давления сверх установленного в обсуждаемых объектах и системах путем сброса рабочей среды. Клапан состоит из корпуса 1, к которому крепится кран3. Стакан закреплен в корпусе болтами 12, шайбами 18 и гайками 15. К нижней части корпуса прикреплен фланец 11, соединенный с корпусом при помощи шпилек 19, шайб 17 и гаек 14. Клапан 2 установлен в корпусе и торцевой частью цилиндрического буртика упирается в торцевую плоскость внутренней цилиндрической части корпуса. В торец верхнего цилиндрического конца клапана 2 установлена на резьбе тарелка 4, на которую опирается пружина 5, регулируемая винтом 8. Винт 8 опирается на тарелку 6. Колпак 7 крепится к стакану 3 винтами 13. На резьбовом патрубке корпуса необходимо установить угольник 16. На чертеже клапан изображен в закрытом положении. При повышении давления в системе жидкость, находящаяся в полости отверстия фланца 11 под клапаном 2, давит на него и клапан, сжимая пружину 5, открывает отверстие. Избыточная жидкость через отверстия в резьбовом патрубке корпуса и угольника сливается по трубопроводам (на чертеже не изображены) в бак. Герметичность соединения корпуса 1 и фланца 11осуществлена резиновым кольцом 10. Для избежания утечки жидкости между корпусом 1 и стаканом 3 установлена прокладка 9.
МЕТОДИЧЕСКИЕ УКАЗАНИЯ
Чертеж выполнить на формате А3 в двух изображениях в масштабе 1:1.
На чертеже выполнить следующие соединения:
I – Подсоединить к раструбу корпуса 1 угольник 16 (резьба G3/4); II – соединить колпак 7 со стаканом 3 винтами 13 (резьба М6); III – выполнить соединение стакана 3 с корпусом 1 болтами 12 (резьба М10), установить пружинные шайбы 18 и гайки 15; IV – соединить фланец 11 с корпусом 1 шпильками 19 (резьба М8, материал корпуса – чугун), установить пружинные шайбы 17 и гайки 14. Заполнить в спецификации графу Стандартные изделия.
Клапан предохранительный НГТУ.002.022.100 сб Клапан предохранительный НГТУ.002.022.100 спецификация Клапан предохранительный НГТУ.002.022.100 3d сборка Клапан предохранительный НГТУ.002.022.100 чертежи Корпус НГТУ.002.022.101 Клапан НГТУ.002.022.102 Стакан НГТУ.002.022.103 Тарелка НГТУ.002.022.104 Пружина НГТУ.002.022.105 Тарелка НГТУ.002.022.106 Колпак НГТУ.002.022.107 Винт регулировочный НГТУ.002.022.108 Прокладка НГТУ.002.022.109 Кольцо НГТУ.002.022.110 Фланец НГТУ.002.022.111
Клапан предохранительный НГТУ.002.022.100 СКАЧАТЬ
|
| |
|
|
| engineerklub | Дата: Суббота, 27.12.2025, 08:42 | Сообщение # 23 |
 Генералиссимус
Группа: Администраторы
Сообщений: 39098
Статус: Offline
| Кран спускной НГТУ.002.023.100 ЧЕРТЕЖ
 Спускной кран является одним из видов арматуры трубопроводов и предназначается для спуска жидкости из системы. Кран состоит из корпуса 1, в котором установлена коническая пробка 2. В верхней части корпуса установлена втулка сальника 4, уплотняющая сальниковую набивку 16. Между набивкой и верхним основанием конической части пробки установлена втулка 3. Втулка сальника 4 крепится к корпусу 1 шпильками 15, шайбами 13 и гайками10. Для поворачивания пробки в нужное положение на верхнем цилиндрическом конце ее закреплена при помощи установочного винта 9 рукоятка 5. Фланец 7 крепится к корпусу при помощи болтов 8, шайб 14 и гаек 11. На резьбовом патрубке корпуса необходимо установить угольник 12. На чертеже кран изображен в открытом положении. При повороте рукоятки 5 пробка 2, вращаясь, меняет поперечное сечение или полностью перекрывает отверстие, через которое проходит жидкость. К корпусу подсоединяются два трубопровода (на чертеже они не показаны), по которым проходит жидкость. С одной стороны трубопровод подсоединяется к резьбовому концу фланца 7, а с другой – к угольнику 12. Полное прилегание сопряженных поверхностей пробки 2 и корпуса 1 достигается конической формой этих деталей. Уплотнение пробки 2 осуществляется при помощи сальниковой набивки 16. Для избежания утечки жидкости между корпусом 1 и фланцем 7 установлена прокладка 6.
МЕТОДИЧЕСКИЕ УКАЗАНИЯ Чертеж выполнить на формате А3(А2) в двух изображениях в масштабе 1:1.
На чертеже выполнить следующие соединения:
I – подсоединить к корпусу 1 угольник 12 (резьба G3/4); II – выполнить соединение рукоятки 5 и пробки 2 винтом 9 (резьба М6); III – соединить втулку сальника 4 с корпусом 1 шпильками 15 (резьба М10, материал корпуса – сталь), установить пружинные шайбы 13 и гайки 10; IV – выполнить соединение фланца 7 с корпусом 1 болтами 8 (резьба М12), установить пружинные шайбы 14 и гайки 11. Заполнить в спецификации графу Стандартные изделия.
Кран спускной НГТУ.002.023.100 сб Кран спускной НГТУ.002.023.100 спецификация Кран спускной НГТУ.002.023.100 3d сборка Кран спускной НГТУ.002.023.100 чертежи Корпус НГТУ.002.023.101 Пробка НГТУ.002.023.102 Втулка НГТУ.002.023.103 Втулка сальника НГТУ.002.023.104 Рукоятка НГТУ.002.023.105 Прокладка НГТУ.002.023.106 Фланец НГТУ.002.023.107
Кран спускной НГТУ.002.023.100 СКАЧАТЬ
|
| |
|
|
| engineerklub | Дата: Воскресенье, 28.12.2025, 13:18 | Сообщение # 24 |
 Генералиссимус
Группа: Администраторы
Сообщений: 39098
Статус: Offline
| Насос шестеренчатый НГТУ.002.024.100 ЧЕРТЕЖ
 Насос – машина, преобразующая механическую энергию двигателя в механическую энергию состояния жидкости с целью ее подъема, перемещения или получения сжатых газов. Шестеренчатые насосы большей частью употребляются для перекачки вязких жидкостей. Насос состоит из корпуса 1, в котором установлены шестерня 2 и вал – шестерня 4. Крышка 6 центрируется на корпусе штифтами 14 и крепится к нему болтами 7, шайбами 12 и гайками 9. К корпусу 1 крепится при помощи шпилек 13, шайб 11 и гаек 8 втулка сальника 5, которая уплотняет сальниковую набивку 15. На резьбовой конец патрубка корпуса необходимо установить муфту 10. Вращательное движение вал – шестерня 3 получает от двигателя через муфту (на чертеже она не изображена), установленную на резьбовом конце вала – шестерни. Вал – шестерня вращается по часовой стрелке и, находясь в зацеплении с шестерней 2, приводит ее во вращательное движение против часовой стрелки (см. вид слева, местный разрез). При выходе зубьев из зацепления образуется вакуум, в который засасывается жидкость и перегоняется между зубьями и цилиндрическими отверстиями в корпусе насоса к патрубку, выполненному в разрезе. Далее жидкость через муфту 10 и трубопровод идет в систему (трубопровод на чертеже не изображен). Герметизация шейки вала – шестерни 3 в месте выхода его из корпуса осуществлена при помощи сальниковой набивки 15.
МЕТОДИЧЕСКИЕ УКАЗАНИЯ Чертеж шестеренчатого насоса выполнить в формате А2 в масштабе 1:1 в двух изображениях.
На чертеже выполнить следующие соединения:
I – выполнить соединение втулки сальника 5 и корпуса 1 шпильками 13 (резьба М8, материал корпуса – алюминий), установить шайбы пружинные 2 и гайки 8; II – соединить крышку 6 и корпус 1 болтами 7 (резьба М10), установить шайбы пружинные 12 и гайки 9; III – подсоединить к корпусу 1 муфту 10 (резьба G 3/4); IV – выполнить соединение крышки 6 и корпуса 1 штифтами 14 (размеры штифта 8х20). Заполнить в спецификации графу Стандартные изделия.
Насос шестеренчатый НГТУ.002.024.100 сб Насос шестеренчатый НГТУ.002.024.100 спецификация Насос шестеренчатый НГТУ.002.024.100 3d сборка Насос шестеренчатый НГТУ.002.024.100 чертежи Корпус НГТУ.002.024.101 Шестерня НГТУ.002.024.102 Вал-шестерня НГТУ.002.024.103 Втулка НГТУ.002.024.104 Втулка сальника НГТУ.002.024.105 Крышка НГТУ.002.024.106
Насос шестеренчатый НГТУ.002.024.100 СКАЧАТЬ
|
| |
|
|
| engineerklub | Дата: Воскресенье, 28.12.2025, 16:14 | Сообщение # 25 |
 Генералиссимус
Группа: Администраторы
Сообщений: 39098
Статус: Offline
| Цилиндр упора НГТУ.002.025.100 ЧЕРТЕЖ
 Цилиндр представляет гидродвигатель с прямолинейным возвратно-поступательным движением поршня относительно корпуса цилиндра. Цилиндр упора предназначается для зажима или фиксации деталей в определенном положении. Цилиндр упора состоит из цилиндра 1, к которому крепится при помощи болтов 10, шайб 17 и гаек 13 крышка 6. На крышку 6 при помощи шпилек 18, шайб 16 и гаек 12 установлена крышка 7, в которую упирается пружина 5. Другим торцом она упирается в тарелку 4, поджимающую поршень 2. Поршень установлен на штоке 3. В расточках поршня расположены кольца 8. Манжета 14, установленная в расточке цилиндра, поддерживается шайбой 9. На бобышку цилиндра необходимо установить угольник 15. К отверстиям бобышки цилиндра через угольник 15 подается под давлением жидкость, которая перемещает поршень 2 вправо. В месте с поршнем вправо перемещается шток 3, головка которого находится в пазу фиксирующей детали и при перемещении прижимает деталь к раме (на чертеже фиксирующая деталь и рама не изображены). Для освобождения детали давление в системе понижается, и поршень под действием пружины 5 возвращается в первоначальное положение. Уплотнение поршня 2 в цилиндре осуществляется двумя чугунными поршневыми кольцами 8. Шток в цилиндре 1 уплотняется резиновой манжетой 14.
МЕТОДИЧЕСКИЕ УКАЗАНИЯ Чертеж цилиндра выполнить на формате А2 в масштабе 1:1 в двух изображениях.
На чертеже выполнить следующие соединения:
I – подсоединить к цилиндру1 угольник 15 (резьба G 1/2); II – выполнить соединение крышки 6 и цилиндра 1 болтами 10 (резьба М12), установить шайбы пружинные 17 и гайки 13; III – соединить крышки 7 и 6 шпильками 18 (резьба М10, материал крышки 6 – сталь), установить шайбы пружинные 16 и гайки12; IV – выполнить соединение шайбы 9 и цилиндра 1 винтами 2. Заполнить в спецификации графу Стандартные изделия.
Цилиндр упора НГТУ.002.025.100 сб Цилиндр упора НГТУ.002.025.100 спецификация Цилиндр упора НГТУ.002.025.100 3d сборка Цилиндр упора НГТУ.002.025.100 чертежи Цилиндр НГТУ.002.025.101 Поршень НГТУ.002.025.102 Шток НГТУ.002.025.103 Тарелка НГТУ.002.025.104 Пружина НГТУ.002.025.105 Крышка НГТУ.002.025.106 Крышка НГТУ.002.025.107 Кольцо поршневое НГТУ.002.025.108 Шайба НГТУ.002.025.109
Цилиндр упора НГТУ.002.025.100 СКАЧАТЬ
|
| |
|
|